
habitation klike - 2017
- habitations
- nouveau
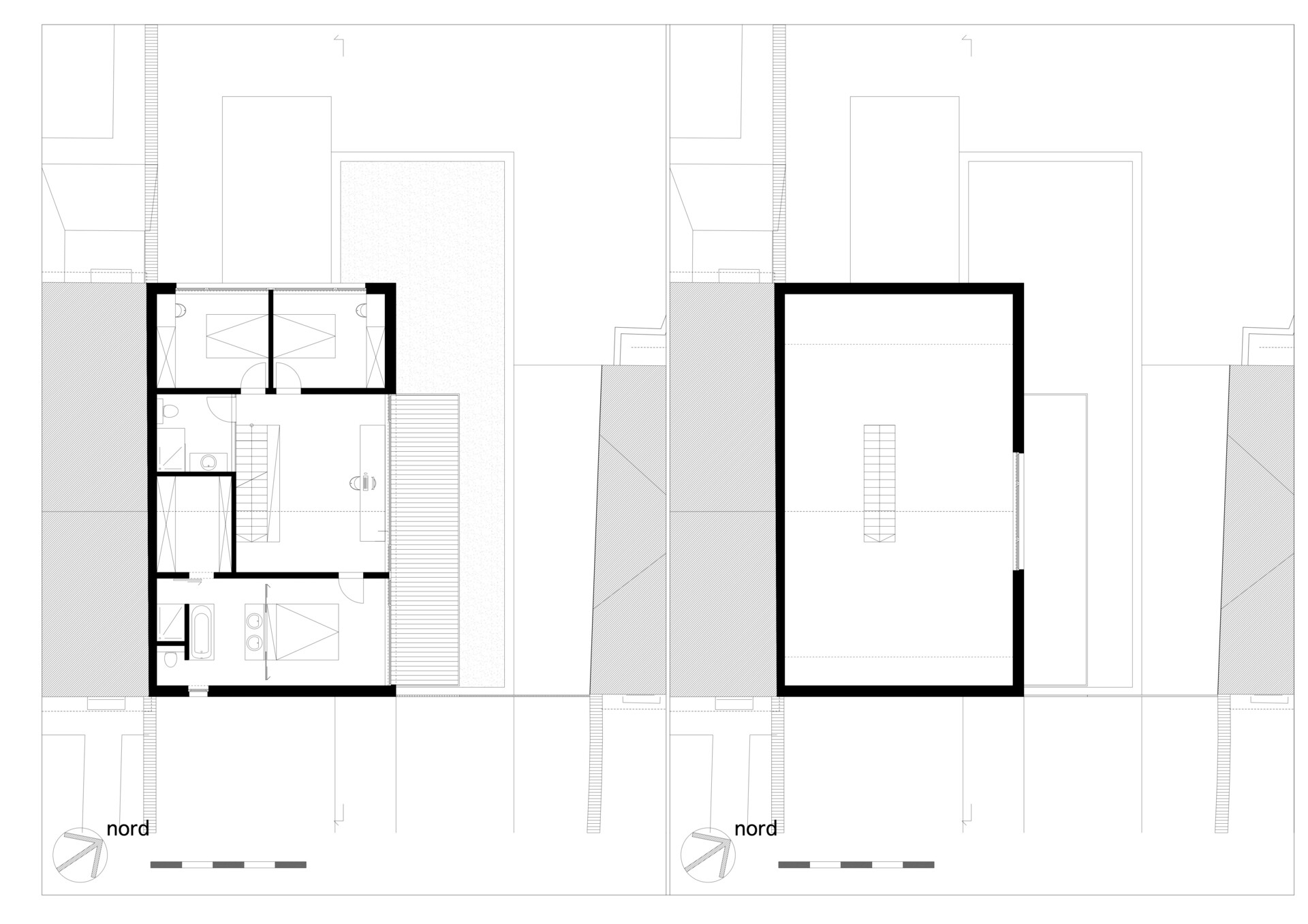
L’habitation remplace une ancienne étable désaffectée.
Le nouveau volume à 2 pans s’aligne sur l’habitation mitoyenne.
Il propose 3 façades mais se prolonge à rue afin de redéfinir l’alignement avec la ferme historique.
Cette peau de bois plus ou moins ajourée ou rétractable privatise aussi bien des espaces intérieurs que la zone d’entrée couverte, un car-port, une cour ou encore une terrasse.
Un volume excroissant en façade arrière projette le séjour dans un espace baigné de lumière au cœur du jardin.
- scho
- loma
- miar
- sclu
- loten park
- crahayjamaigne
- les jardins de werson 2
- moar
- crus
- neozone
- gibe
- leni
- jach
- pharmacie aline gillet
- pres
- le clos nestor
- meja
- les jardins du montlégia
- maes
- lera
- leja
- les crêtes de balmoral
- lasto
- hahe
- eurofides
- meth
- lafra
- cdb
- go2w
- soma
- blov
- ooeu
- gage
- roma
- hoan
- les terrasses du vinave
- les jardins d'eynatten
- les terrasses des deux étés
- les jardins de stockem
- dimi
- watro
- les jardins de beiler
- this
- siov
- piay
- demo
- les jardins de weiswampach 3
- leba
- klike
- listen
- roco
- paso
- lach
- groe
- midiva
- les terrasses du lac
- costa
- les jardin de hertogenwald
- mafa
- les terrasses de la croix de chôdes
- huho
- haja
- toxho
- mabau
- rowa
- rean
- daxho
- dema
- deba
- elvee
- beem
- les jardins de weiswampach 2
- roha
- soov
- emra
- les jardins d'amblève
- govi
- gohe
- naturhome
- nali
- jama
- les jardins de werson
- deou
- astronef
- snel
- vawa
- boma
- mima
- poumay
- mist